As the Architect of Record for the renovation project of an 8,800 SF penthouse in Key Biscayne, I collaborated closely with Atelier deYavorsky in charge of the Interior Design and Andres Tabora (landscape architecture) to ensure a seamless integration of design and functionality. My role encompassed overseeing the interior renovation and exterior improvements, focusing on enhancing the space’s aesthetic while adhering to regulatory requirements and maintaining structural integrity. This partnership allowed us to reimagine the penthouse, prioritizing both modern design elements and the comfort of the occupants. Through careful planning and coordination, we delivered a refined living experience that reflects the unique qualities of the site.
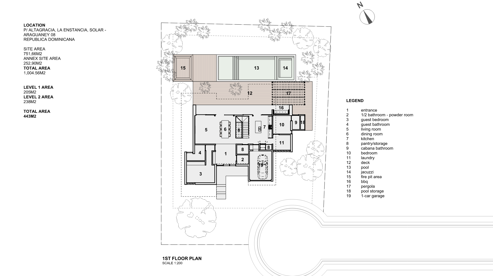
The design for the private residence in the Dominican Republic encompasses a two-level structure tailored to the lifestyle of a family of three. The concept design package prioritizes open and airy spaces, blending indoor and outdoor living to take advantage of the tropical climate. The first level features a spacious living area that flows seamlessly into an outdoor terrace, fostering connectivity with nature. A well-appointed kitchen, designed for family gatherings, serves as the heart of the home. The upper level is dedicated to private quarters, including a master suite with a balcony overlooking lush surroundings and two additional bedrooms. Natural materials and local finishes are incorporated throughout, enhancing the home's aesthetic while respecting its cultural context. This design will serve as a detailed guide for the local architect to prepare the necessary construction documents.
The proposed four-story residential building in the heart of Coral Gables, Florida, is designed to accommodate both short and long-term rentals, blending modern aesthetics with the charm of the surrounding neighborhood. The facade features a mix of glass and concrete, creating an open and airy feel while maximizing natural light. Each floor consists of versatile units, ranging from cozy studios to spacious two-bedroom apartments, catering to various tenant demographics. A landscaped rooftop terrace provides communal outdoor space with views of the city, encouraging social interaction among residents. Additionally, the building integrates sustainable practices, including energy-efficient systems and green spaces, enhancing its appeal to eco-conscious renters. Located near local amenities and cultural attractions, this design aims to foster a vibrant, inclusive community within a desirable urban setting.
The project involved an extensive renovation of a one-story single-family residence located in the Roads area of Miami, just a mile from Brickell. The renovation included the addition of a second floor, comprehensive interior updates, and replacing the existing pool. Branger took on the dual roles of both the interior design and architectural project management, overseeing the coordination of all consultants involved. The collaboration with Bell Construction resulted in the successful completion of the project in 2022, transforming the residence into a modern and functional living space that harmonizes with its surroundings and addresses the needs and aspirations of the client.
The second extensive renovation project of a single-family residence, akin to the ROA1 project, involves a considerable second-level addition alongside a comprehensive interior overhaul. Branger has taken the lead on the architectural design, ensuring the new addition harmonizes with the existing structure while enhancing its functionality and aesthetic appeal. As of September 2024, the project is currently under construction by Innerspace, who are focused on transforming the space to better suit the needs of the family and improve overall livability. The renovation aims to create a seamless blend of modern design with the home's original character, reflecting a thoughtful approach to contemporary living.
As the construction progresses, the transformation of the residence is expected to greatly enhance the quality of life for the client's young family of 4, providing an inviting and comfortable home.
The third renovation project in The Roads focuses on an extensive overhaul of a single-family residence, set to double the home’s original area. The project includes the addition of a new pool and comprehensive interior and exterior upgrades, enhancing both the functionality and aesthetic appeal of the property. As of September 2024, construction is underway, managed by Boscan Construction LLC. Branger has taken the lead in architectural and interior design, while also coordinating all engineering efforts to ensure a seamless renovation process.
The project involved the renovation of a four-story building in Coconut Grove for the new offices of Raymond Jungles. Initially, the design included a fifth-story addition; however, the scope was ultimately revised to focus on the interior and exterior renovation of all existing floors. This included the development of a new exterior envelope, enhancing the building's aesthetic and functional qualities. A significant feature of the renovation was the lush landscaping designed by Raymond Jungles, which complemented the architectural changes and created a vibrant, inviting atmosphere for the office space. The renovation was completed in 2018.
Miami Shores Residence
Miami, Florida
Located on a lush, tree-lined street in Miami Shores, this project involved the thoughtful renovation of a 1948 residence with notable architectural character. The goal was to preserve the home’s original charm while reimagining the interiors to support the dynamic needs of a young family of four.
The design honors the home's historic roots through careful restoration and integration of modern spatial strategies—enhancing flow, light, and functionality without compromising its mid-century soul.
BRANGER served as Architect of Record in collaboration with Atelier DeYavorsky, the project's lead designer (atelierdeyavorsky.com). Construction was executed by Navicon Construction (naviconus.com), with landscape design by Andres Tabora (taboralandscape.com).
The result is a residence that not only meets the contemporary lifestyle of its occupants but also reinforces the architectural legacy of one of Miami's most established neighborhoods.
Collins Residence
Miami Beach, Florida
This project involved the unification of two adjacent apartment units into a single, expansive beachfront residence. Located in a high-rise with panoramic views of the Atlantic, the design reimagines coastal living through a modern, minimalist lens—elevating every surface, finish, and spatial connection.
The transformation called for a complete interior renovation, with an emphasis on clarity, flow, and understated luxury. Spaces were reconfigured to maximize light and views, while material selections create a calm, tactile environment ideal for retreat and relaxation.
Conceived as a secondary vacation home, the residence offers a serene counterpoint to urban life—where the rhythm of the ocean becomes the backdrop to a space crafted for rest, gathering, and renewal.
BRANGER led the design and documentation of the project, delivering an elevated interior experience that seamlessly blends function with timeless coastal elegance.
Aenean luctus quis ante id volutpat. Quisque sed elementum mi, nec porttitor dui. Donec sollicitudin finibus diam auctor sagittis. Nullam lacinia mollis urna, nec porta nibh. Vivamus ac faucibus nulla. Nulla facilisi. Fusce tincidunt ipsum aliquet, lacinia augue vitae, bibendum lectus. Suspendisse egestas sapien libero, eu efficitur lorem consectetur.
Aliquam hendrerit risus in metus luctus, id posuere turpis dapibus. Nunc magna elit, vehicula at odio et, sodales semper ante. Cum sociis natoque penatibus et magnis dis parturient montes, nascetur ridiculus mus. Integer tempor urna ut nisl eleifend mattis. Aliquam quis egestas eros. Ut ac leo id ipsum vulputate fermentum eget eu nibh. Fusce efficitur cursus iaculis. Aenean tristique egestas ex, at dignissim sapien pellentesque eget. Nullam placerat, urna et consequat tempor, velit leo porttitor urna, vitae vulputate arcu massa eu erat.
Vivamus sit amet sapien vel neque convallis convallis. Fusce malesuada quis orci eget volutpat. Vestibulum pellentesque egestas orci id maximus. Vivamus felis sem, sagittis ut sollicitudin vitae, porttitor vitae arcu. Maecenas ut nulla vel leo hendrerit congue quis at turpis. Aliquam quis elementum nisi, sed lobortis dui. Maecenas dictum sagittis nibh, id placerat velit maximus ut.
Maecenas et augue eget lorem hendrerit dictum eget a magna. Praesent venenatis finibus luctus. Fusce hendrerit neque ultricies dolor porta fringilla. Maecenas non nisl placerat, pharetra quam ut, sodales eros. Duis ultricies in quam non elementum. Aliquam faucibus, augue a blandit laoreet, sem velit scelerisque odio, a viverra dolor erat vel mauris. Nunc eget ligula at velit feugiat accumsan in nec quam. Cras elit ante, convallis eu mattis sit amet, malesuada eu tellus. Vivamus elit dui, rhoncus ac velit id, vestibulum facilisis purus. Aliquam imperdiet ultricies pellentesque. Morbi at odio eu sapien venenatis congue.